| MAISON MEDICALE - SCLESSIN
information
plans









| MAISON MEDICALE - SCLESSIN
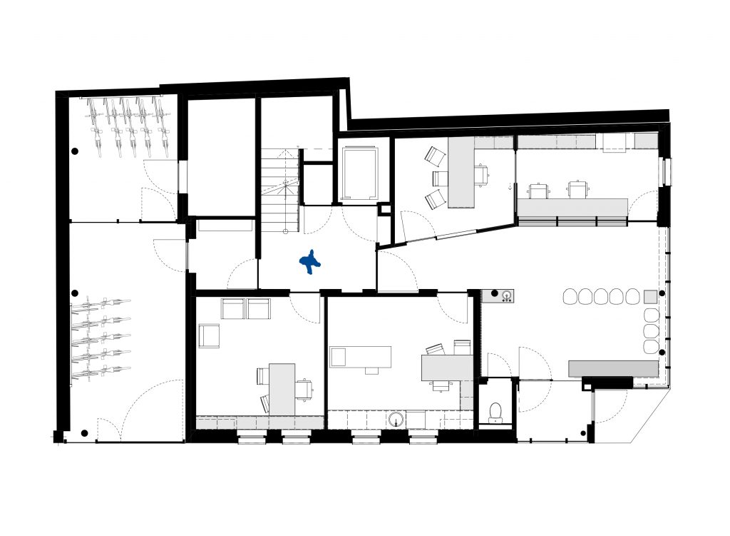
Implanté sur une parcelle d’angle très étroite, le projet se développe sur 4 niveaux dont une toiture terrasse. Le programme à intégrer est important : 9 cabinets de soin, une administration, une salle polyvalente et une salle de gymnastique. Le système de distribution est volontairement évident pour faciliter l’accès aux différents secteurs de soin pour les patients. Malgré l’accolement à deux limites mitoyennes, la lumière naturelle et le rapport au monde extérieur sont omniprésents dans tous les espaces d’accueil.
A l’extérieur, la palette de matériaux de teinte claire apporte luminosité et homogénéité à cette portion de quartier aux couleurs ternes. Les sous-bassement en grès cérame et le traitement subtil de menuiseries en aluminium de couleur bronze renvoie une allure sobre et élégante.
Crédits photo : Maxime Vermeulen
Programme : Construction d'une maison médicale à Sclessin
Année : 2019-2025
Surface : 780 m²
Statut : Réalisé
Retour